INDIVIDUAL XL

4,00 x 3,30 m

Lärche Fassade

Hemmingen

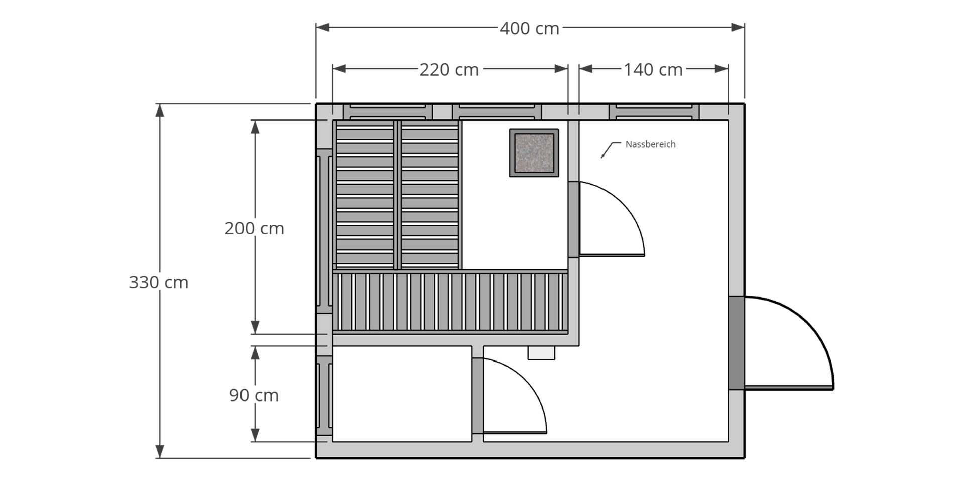
Am Ende einer großzügigen Gartenanlage liegt dieses Saunahaus an einem kleinen Naturteich. Ein kompakter und praktischer Grundriss ermöglicht auf nur 13 m² einen großen Saunaraum, eine Dusche und einen WC-Raum. Die schmalen bodentiefen Fenster geben von der Sauna wie auch von der Dusche den Blick auf den direkt ans Haus anschließenden Gartenteich frei.